Profile

A master plan that defines
the future

Azzura Square will assume the mantle as the region’s residential icon and set the character for a vibrant retail and dining precinct set to emerge as a result. Masterplanned on a 3-hectare CBD site, it will be delivered over 2 stages with the expected delivery of stage 1 in Q4 of 2024.


Stage 1 comprises towers T1 and T2 currently totalling 338 apartments plus 2,200m2 of retail space; while stage 2 will add a further 103 apartments and a second 11,000m2 shopping centre accommodating a major supermarket, 20 specialty stores, restaurants, bars and a cinema complex.


Whether you’re investing to call Azzura Square home or as an individual or corporate investor, prepare to reap the rewards.

Modular design flexibility

Azzura Square offers scope for layout flexibility during the pre-construction phase and will enable new owner-occupiers or tenants to adapt certain design elements to suit their needs. Innovative floor plans in stage 1 can be tailored, including the mix of 1, 2 and 3 bedroom residences.

Stunning new levels of amenity

Envisioned to address the genuine need for quality housing and a premium lifestyle in the community, Azzura Square will offer a new sense of permanence, comfort and walkability for residents.


Each tower has been planned with a sense of security, a 25m rooftop indoor air-conditioned swimming pool, a roof-level family lounge and entertainment area, secure car parking and boat parking and unprecedented rooftop views.


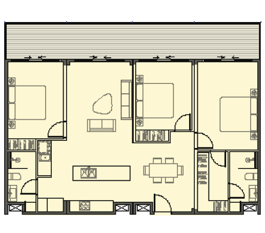
Typical Azzura Square Floor plans

1 BEDROOM FLOOR PLAN

2 BEDROOM FLOOR PLAN

3 BEDROOM FLOOR PLAN

Modular design and flexibility

Sales Enquiries

Rare investment opportunity

"*" indicates required fields

Azzura Square are proud members of the Port Hedland Chamber of Commerce and Industry.

© 2024 by Azzura Investments Limited.

*Terms, conditions and eligibility requirements apply. To find out more about the available State Government duty rebate, please visit the following website - Western Australian State Government

Whilst all details have been carefully prepared, no warranty is given either expressly or impliedly by the vendors or their agents in respect of the accuracy of any photographs, information and illustrations. Photographs, information and illustrations are indicative only for presentation purposes and are subject to change.
 They should not be relied upon as an accurate representation of the final product. Specification may change at any time.